Visi miestai
Visi miestai
Parduoda
└ Parduoda └ Sklypai, miškai └ Nekilnojamasis turtas └ Visi skelbimai Transportas Nekilnojamasis turtas Statyba, remontas Viskas namams Telefonai Darbas, mokslas Technika Laisvalaikis Drabužiai Kompiuterija Verslas Viskas nemokamai Prekės vaikams
+370 68677780
Pažymėti

101.05 a sklypas Vilniaus r. sav., Bendoriai, Draugų g.

Siūlyti kainą990 000 €
9 797 €/a
+3
Aprašymas
PARDUODAMAS 101 A SKLYPAS SU PATVIRTINTAIS PROJEKTINIAIS PASIŪLYMAIS KOMERCINIAM OBJEKTUI BENDORIUOSE, VILNIAUS RAJ.
BENDRA INFORMACIJA:
- Vieta: Draugų g. 33, Bendorių k., Vilniaus raj.;
- Sklypo plotas: 101,05 ai;
- Sklypo paskirtis: kita;
- Sklypo naudojimo būdas: komercinės paskirties objektų teritorijos;
- Nuosavybė – privati.
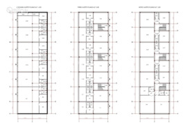
Yra patvirtinti projektiniai pasiūlymai trijų sublokuotų pastatų su administracinėmis, prekybos/maitinimo ir sandėliavimo paskirties patalpomis.
Projektuojamas pastatų aukštis – 10,8 m (leistinas - 15 m); aukštingumas - 3 a. (leistinas - 3 aukštai); užstatymo tankis - 20% (leistinas – 30% (gamtinio karkaso teritorija)); užstatymo intensyvumas - 50% (leistinas - 50%). Bendras želdynų plotas - 4000 m² (39,6% bendro sklypo ploto).
Pagal projektą bendras trijų pastatų plotas - 5033 m² (1758 m², 1746 m² ir 1529 m²). Galimas atskirų komercinių patalpų skaičius – 55. Kiekviename pastate projektuojamos apie 50-100 m² patalpų grupės su atskirais įėjimais (cokoliniame ir pirmajame aukštuose), apie 30-120 m² - su laiptinėmis (antrajame aukšte).
Nors suprojektuoti pastatai trijų aukštų, tačiau dėl žemės sklypo peraukštėjimo tiesioginius patekimus į patalpas turi tiek cokolinis, tiek pirmas aukštai. Į 2-o aukšto patalpas patenkama per bendras laiptines.
Patalpos pagal poreikį gali būti lengvai jungiamos ir pritaikomos pagal individualų naudotojų poreikį bei lengvai adaptuojamos įvairiai komercinei veiklai (prekybai, paslaugoms, biurams, sandėliavimui, studijai ir pan.
Parkavimo vietų skaičius – 128 (antžeminis parkavimas).
Kaina: 990000 Eur + PVM.
-- Objekto nr. Ober-Haus tinklapyje www.ober-haus.lt/OH492954
Profesionali pagalba parduodant, nuomojant ir įsigyjant nekilnojamąjį turtą:
- Sandoriui reikalingų dokumentų analizė prieš pardavimą;
- Preliminariųjų, rezervavimo sutarčių, priėmimo-perdavimo aktų ir kitų sutarties priedų bei dokumentų parengimas apsaugant jūsų interesus;
- Efektyvi ir itin platų pirkėjų ratą apimanti rinkodara ir marketingo priemonės, pirkėjų srauto monitoringas;
- Jūsų interesų atstovavimas derybose, sutarčių derinime;
- Konsultavimas mokestiniais, juridiniais klausimais.
LAND PLOT OF 101 A FOR SALE WITH APPROVED PROJECT PROPOSALS FOR A COMMERCIAL OBJECT
GENERAL INFORMATION:
- Location: Draugu st. 33, Bendoriai, Vilnius district;
- Plot area: 101,05 a;
- Plot purpose: other;
- Type of land use: territories of commercial objects;
- Property is private.
There are approved project proposals for three detached buildings with administrative, trade/catering and storage facilities. Projected height of buildings - 10.8 m (allowed - 15 m); height - 3 floors (as allowed); building density - 20% (allowed - 30%); construction intensity - 50% (allowed - 50%). The total area of greenery is 4000 m² (39.6% of the total plot area).
According to the project, the total area of the three buildings is 5033 m² (1758 m², 1746 m² and 1529 m²). The number of individual commercial premises is 55. In each building, groups of rooms of about 50-100 m² are designed with separate entrances (on the basement and first floors), about 30-120 m² - with staircases (on the second floor). Although the buildings are designed to have three floors, due to the elevation of the plot of land, both the basement and ground floors have direct access to the premises. The rooms on the 2nd floor are accessed via a common staircase. The premises can be easily connected and adapted according to the individual needs of users and can be easily adapted to various commercial activities (trade, services, offices, storage, studio, etc.).
Capacity of parking lot - 128.
Price: 990000 Eur + VAT. -- Offer no. in Ober-Haus webpage www.ober-haus.lt/OH492954
.
Rodyti daugiau
Papildoma informacija
Kaina
990 000 €
1 aro kaina
9797.13 €
Adresas
Vilniaus r. sav., Bendoriai, Draugų g.
Paskirtis
Komercinė
Sklypo plotas
101.05 a
Būsto paskolos skaičiuoklė
Nekilnojamojo turto kaina
Pradinis įnašas
%
15% 100%
Paskolos laikotarpis
metų
1 metai 30 metų
Banko marža
%
Euribor
%
Apytikslė įmoka
0 € / mėn.
Rodomas rezultatas yra informacinis ir remiasi apytikriais skaičiavimais. Įkeistas turtas turi būti apdraustas. Notarų mokesčiai, turto vertinimo ir draudimo išlaidos bankui nėra žinomi, todėl nėra įskaičiuojami į bendros paskolos kainos metinę normą palūkanų normą.
Vieta žemėlapyje
Pardavėjas: NT brokeris/statytojo atstovas
Vilniaus r. sav.
+370 68677780
Įdėtas: Redaguotas: Parodė / Perskaitė: 400 / 5 Skelbimo ID: 68587165