Visi miestai
Visi miestai
Parduoda
└ Parduoda └ Sklypai, miškai └ Nekilnojamasis turtas └ Visi skelbimai Transportas Nekilnojamasis turtas Statyba, remontas Viskas namams Telefonai Darbas, mokslas Technika Laisvalaikis Drabužiai Kompiuterija Verslas Viskas nemokamai Prekės vaikams
+370 68427094
Pažymėti

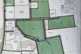
135.0 a sklypas Klaipėdos r. sav., Karklė, Placio g.

Siūlyti kainą472 500 €
3 500 €/a
Aprašymas
Ar kada nors pagalvojote, kad norėtumėte turėti turtą prie Baltijos jūros?
Galbūt Jūs norite vystyti kaimo turizmo verslą ar pastatyti Vilų kvartalą?
Parduodamas 135 arų rekreacinės paskirties sklypas, Karklėje, Placio gatvėje!
Tai puiki vieta investicijai, tiek pačių nuosavam gyvenimui! Turime daugiau variantų
Iki jūros, tik 3 minutės pėsčiomis pro pušyną!
Lankomiausią ir vieną iš gražiausių vietų Pajūryje, "Olandų kepurės" skardį pasieksite per 10 minučių pėsčiomis!
BENDRA INFORMACIJA:
- Plotas: 1.35 ha;
- Paskirtis: Rekreacinė; Detalusis planas
- Su detaliuoju planu - kaina 3500 eur/a + PVM
- Galimas užstatymas 12 vilų. Nurodyta eksplikacijoje
- Pastatų aukštis 8.5 m.
- Leistinas pastatų aukštais - Vienas aukštas + mansarda
KOMUNIKACIJOS:
- Šalia sklypo, reikės atlikti prisijungimo darbus
Daugiau informacijos telefonu --* +370 684 27 094
VITALIJ KOVALENKO
URBAN ESTATE
Mob. tel. +370 684 27 094
El. paštas: [email protected]
Adresas: Kauno g. 16, Vilnius
Rodyti daugiau
Papildoma informacija
Kaina
472 500 €
1 aro kaina
3500 €
Adresas
Klaipėdos r. sav., Karklė, Placio g.
Sklypo plotas
135.0 a
Ypatybės
Elektra, Dujos
Būsto paskolos skaičiuoklė
Nekilnojamojo turto kaina
Pradinis įnašas
%
15% 100%
Paskolos laikotarpis
metų
1 metai 30 metų
Banko marža
%
Euribor
%
Apytikslė įmoka
0 € / mėn.
Rodomas rezultatas yra informacinis ir remiasi apytikriais skaičiavimais. Įkeistas turtas turi būti apdraustas. Notarų mokesčiai, turto vertinimo ir draudimo išlaidos bankui nėra žinomi, todėl nėra įskaičiuojami į bendros paskolos kainos metinę normą palūkanų normą.
Pardavėjas: NT brokeris/statytojo atstovas
Klaipėdos r. sav.
+370 68427094
Įdėtas: Redaguotas: Parodė / Perskaitė: 536 / 17 Skelbimo ID: 68521903
Užsiregistravo: 2014-06-05