Visi miestai
Visi miestai
Parduoda
└ Parduoda └ Butai └ Nekilnojamasis turtas └ Visi skelbimai Transportas Nekilnojamasis turtas Statyba, remontas Viskas namams Telefonai Darbas, mokslas Technika Laisvalaikis Drabužiai Kompiuterija Verslas Viskas nemokamai Prekės vaikams
130 000 €
79 m²| 3 kamb.| 1 / 1 a.
+370 60848160
Pažymėti

3 kamb. butas Šiauliai, Šiauliai

Siūlyti kainą130 000 €
1 646 €/m²
+12
Aprašymas
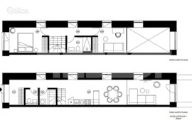
Parduodami loftai naujai vystomame kvartale Pagėgių g., Šiauliai.
VIETA
Susisiekimas su miesto centru itin patogus: vos 1.50 km nuo namų iki miesto centro, PC Saulės miesto galima nueiti per 20min, atomobiliu per 3minutes, o artimiausia viešojo transporto stotelė pasiekiama vos per 30 sekundžių – patogus susisiekimas su visu miestu.
PRIVALUMAI
✓ Itin perspektyvi lokacija
✓ Miesto centrą pasieksite pėsčiomis
✓ Visai šalia PC Saulės miestas, PC Bruklinas
✓ aukštos, net 5.1 metro siekiančios lubos ir dideli langai sukuria erdvės pojūtį
✓ Antresolės lubų aukštis net 2.6 m.
✓ Atskiras įėjimas tiesiai iš lauko, nėra bendrų laiptinių
✓ san.mazgas, racionaliai suplanuota virtuvės zona, leidžianti maksimaliai išnaudoti svetainės plotą.
✓ Įrengti laiptai su medžio masyvo pakopomis
✓ Įrengtas reguliuojamas grindinis šildymas
✓ Įrengtas internetas.
✓ Loftai šviesūs ir šilti, langai orientuoti rytų/vakarų kryptimis
✓ Visas pastatas naujai rekonstruotas: fasadas apšiltintas, uždėtas modernus dekoras, visame name nauji vamzdynai, elektros instaliacija, pakeisti visi langai, sutvarkyta namo teritorija
✓ Kaimynystėje individualūs namai
✓ Geras susisiekimas su visomis miesto dalimis tiek visuomeniniu, tiek asmeniniu transportu.
BENDRA INFORMACIJA:
Adresas: Pagėgių g. 46, Šiauliai
Plotas: 78.82 kv.m
Namo rekonstrukcijos metai: 2026 m.;
Aukštas: 1/1
Kaina: 130 000 eur
Platesnė informacija telefonu 0 608 48160
Dušas, Langai su stiklo paketais, Antžeminė stovėjimo aikštelė, Internetas, Signalizacija, Erdvi stovėjimo aikštelė, Atskiras įėjimas, Aukštos lubos, Virtuvė sujungta su kambariu, Wavin vamzdžiai, Nauja elektros instaliacija, Terasa, Naujas vamzdynas
Daug daugiau REBEST parduodamų ar nuomojamų butų rasite www.rebest.lt 
Neradote ko ieškote – susisiekite tiesiogiai!
Daugiau informacijos apie objektą www.rebest.lt Objekto nr. : 8006
• Nemokamos REBEST nekilnojamojo turto ekspertų konsultacijos.
• Tvarkome su nekilnojamuoju turtu susijusius dokumentus.
• Padedame nekilnojamojo turto vertinimo klausimais.
• Ruošiame pastatų energinio naudingumo sertifikatus.

Rodyti daugiau
Papildoma informacija
Kaina
130 000 €
Adresas
Šiauliai, Šiauliai
Kambarių skaičius
3
Būsto būklė
Įrengtas
Buto aukštas
1
Aukštų skaičius pastate
1
Namo tipas
Mūrinis
Būsto plotas
79 m²
Kaina, €
130000 €
Kaina, €/m²
1646 €/m²
Būsto paskolos skaičiuoklė
Nekilnojamojo turto kaina
Pradinis įnašas
%
15% 100%
Paskolos laikotarpis
metų
1 metai 30 metų
Banko marža
%
Euribor
%
Apytikslė įmoka
0 € / mėn.
Rodomas rezultatas yra informacinis ir remiasi apytikriais skaičiavimais. Įkeistas turtas turi būti apdraustas. Notarų mokesčiai, turto vertinimo ir draudimo išlaidos bankui nėra žinomi, todėl nėra įskaičiuojami į bendros paskolos kainos metinę normą palūkanų normą.
Vieta žemėlapyje
Pardavėjas: NT brokeris/statytojo atstovas
Šiauliai
+370 60848160
Įdėtas: Redaguotas: Parodė / Perskaitė: 240 / 9 Skelbimo ID: 68667247