Visi miestai
Visi miestai
Parduoda
└ Parduoda └ Butai └ Nekilnojamasis turtas └ Visi skelbimai Transportas Nekilnojamasis turtas Statyba, remontas Viskas namams Telefonai Darbas, mokslas Technika Laisvalaikis Drabužiai Kompiuterija Verslas Viskas nemokamai Prekės vaikams
793 909 €
106.01 m²| 4 kamb.| 2 / 4 a.
+370 69943523
Pažymėti

4 kamb. butas Vilnius, Senamiestis, K. Vanagėlio g.

Siūlyti kainą793 909 €
7 489 €/m²
+6
Aprašymas
Išskirtinė galimybė gyventi Vilniaus Senamiestyje – Vilniaus Džiazas!
Puikioje vietoje, Vilniaus miesto Senamiestyje, K. Vanagėlio gatvėje, išskirtiniai namai kviečia gyventojus atrasti aukščiausius gyvenimo kokybės standartus!
Šiuo metu vystomas naujas, modernus ir išskirtinis projektas – Vilniaus Džiazas.
Vilniaus Džiazas – tai projektas, keičiantis Senamiesčio prieigas ir harmoningai įsiliejantis į istorinį Vilniaus centrą. Vos kelios minutės iki Aušros vartų, Barbakano kalno ir žaliųjų miesto parkų.
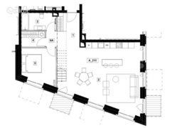
Parduodamas 106,01 kv. m ploto, 4 kambarių butas su įspūdingai aukštomis 4,43 m lubomis.
Iš viso projekte suplanuoti 62 butai. Būsimieji gyventojai jau dabar gali rinktis 2, 3 ir 4 kambarių butus, kurių plotas svyruoja nuo 40 iki 122 kv. m. Daugelyje butų numatyta įrengti antresoles, kurios padidins erdvės funkcionalumą.
Projekto išskirtinumas ir privalumai:
Patogi vieta su puikiai išvystyta infrastruktūra. Lengvas susisiekimas tiek norintiems pasinerti į kultūrinį ar naktinį gyvenimą, tiek ieškantiems ramybės.
Ypač šviesios ir racionaliai suplanuotos erdvės. Net 4 m aukščio vitrininiai langai ir 4,4 m lubos suteikia išskirtinį erdvės pojūtį.
Aukščiausia energinė klasė A++ ir šiuolaikiški techniniai sprendimai užtikrins gyvenimo kokybę ir komfortą.
Saugus ir erdvus požeminis parkingas, kiekvienai vietai numatytas elektros įvadas elektromobilio įkrovimo stotelės įrengimui.
Gyvenimas aptvertoje ir apšviestoje teritorijoje, kurią visą parą stebės modernios apsaugos sistemos.
Itin aukštos kokybės statybos darbai, kokybiškos medžiagos, funkcionalūs ir estetiškai patrauklūs architektūriniai sprendimai.
Numatoma statybų pabaiga – 2026 m. II ketvirtis.
Daugiau informacijos apie projektą rasite: www.vilniausdziazas.lt
Projektą jau galima apžiūrėti gyvai!
-- Objekto nr. Ober-Haus tinklapyje www.ober-haus.lt/OH500236
Profesionali pagalba parduodant, nuomojant ir įsigyjant nekilnojamąjį turtą:
- Sandoriui reikalingų dokumentų analizė prieš pardavimą;
- Preliminariųjų, rezervavimo sutarčių, priėmimo-perdavimo aktų ir kitų sutarties priedų bei dokumentų parengimas apsaugant jūsų interesus;
- Efektyvi ir itin platų pirkėjų ratą apimanti rinkodara ir marketingo priemonės, pirkėjų srauto monitoringas;
- Jūsų interesų atstovavimas derybose, sutarčių derinime;
- Konsultavimas mokestiniais, juridiniais klausimais.
Discover Exceptional Living in the Heart of Vilnius Old Town – Vilnius Jazz
In a prime location on K. Vanagėlio Street, within the charming Old Town of Vilnius, Vilnius Jazz invites you to experience the highest standards of modern living. This exclusive and contemporary new development is currently underway, offering a unique opportunity to live in harmony with the historical spirit of Vilnius—just minutes from the Gate of Dawn, Barbican Hill, and lush city parks.
A 106,01 sq.m, 4-room apartment is now available for sale, featuring impressively high ceilings of 4.43 meters.
The entire project will comprise 62 thoughtfully designed apartments, with options ranging from 2-, 3-, to 4-room layouts, from 40 sq.m to 122 sq.m. Many units are designed to include mezzanines, maximizing space and functionality.
Project Highlights and Advantages:
Exceptional Location: A practical setting with well-developed infrastructure, ideal for those seeking culture, vibrant nightlife, or peaceful retreats.
Spacious Interiors: Abundant natural light and efficient layouts. Floor-to-ceiling display windows up to 4 meters and ceilings soaring to 4.4 meters create an expansive, airy ambiance.
Top Energy Efficiency: Energy class A++, featuring modern technical solutions for sustainability and year-round comfort.
Secure Underground Parking: Spacious and safe underground parking, with each space pre-equipped for electric vehicle charging stations.
Private and Secure Living: The entire area is fenced, well-lit, and under 24/7 surveillance with advanced security systems.
Premium Quality Construction: Superior materials, high-end finishes, and carefully considered architectural and functional solutions.
Project Completion:
Expected in Q2 of 2026.
For more information, visit: www.vilniausdziazas.lt
You’re welcome to see it in person today. -- Offer no. in Ober-Haus webpage www.ober-haus.lt/OH500236
Discover Exceptional Living in the Heart of Vilnius Old Town – Vilnius Jazz
In a prime location on K. Vanagėlio Street, within the charming Old Town of Vilnius, Vilnius Jazz invites you to experience the highest standards of modern living. This exclusive and contemporary new development is currently underway, offering a unique opportunity to live in harmony with the historical spirit of Vilnius—just minutes from the Gate of Dawn, Barbican Hill, and lush city parks.
A 106,01 sq.m, 4-room apartment is now available for sale, featuring impressively high ceilings of 4.43 meters.
The entire project will comprise 62 thoughtfully designed apartments, with options ranging from 2-, 3-, to 4-room layouts, from 40 sq.m to 122 sq.m. Many units are designed to include mezzanines, maximizing space and functionality.
Project Highlights and Advantages:
Exceptional Location: A practical setting with well-developed infrastructure, ideal for those seeking culture, vibrant nightlife, or peaceful retreats.
Spacious Interiors: Abundant natural light and efficient layouts. Floor-to-ceiling display windows up to 4 meters and ceilings soaring to 4.4 meters create an expansive, airy ambiance.
Top Energy Efficiency: Energy class A++, featuring modern technical solutions for sustainability and year-round comfort.
Secure Underground Parking: Spacious and safe underground parking, with each space pre-equipped for electric vehicle charging stations.
Private and Secure Living: The entire area is fenced, well-lit, and under 24/7 surveillance with advanced security systems.
Premium Quality Construction: Superior materials, high-end finishes, and carefully considered architectural and functional solutions.
Project Completion:
Expected in Q2 of 2026.
For more information, visit: www.vilniausdziazas.lt
You’re welcome to see it in person today.
Rodyti daugiau
Papildoma informacija
Kaina
793 909 €
Adresas
Vilnius, Senamiestis, K. Vanagėlio g.
Kambarių skaičius
4
Būsto būklė
Dalinai įrengtas
Šildymas
Centrinis
Buto aukštas
2
Aukštų skaičius pastate
4
Namo tipas
Monolitinis
Būsto plotas
106.01 m²
Kaina, €
793909 €
Kaina, €/m²
7489 €/m²
Būsto paskolos skaičiuoklė
Nekilnojamojo turto kaina
Pradinis įnašas
%
15% 100%
Paskolos laikotarpis
metų
1 metai 30 metų
Banko marža
%
Euribor
%
Apytikslė įmoka
0 € / mėn.
Rodomas rezultatas yra informacinis ir remiasi apytikriais skaičiavimais. Įkeistas turtas turi būti apdraustas. Notarų mokesčiai, turto vertinimo ir draudimo išlaidos bankui nėra žinomi, todėl nėra įskaičiuojami į bendros paskolos kainos metinę normą palūkanų normą.
Vieta žemėlapyje
Pardavėjas: NT brokeris/statytojo atstovas
Vilnius
+370 69943523
Įdėtas: Redaguotas: Parodė / Perskaitė: 230 / 9 Skelbimo ID: 68596813