Visi miestai
Visi miestai
Parduoda
└ Parduoda └ Sklypai, miškai └ Nekilnojamasis turtas └ Visi skelbimai Transportas Nekilnojamasis turtas Statyba, remontas Viskas namams Telefonai Darbas, mokslas Technika Laisvalaikis Drabužiai Kompiuterija Verslas Viskas nemokamai Prekės vaikams
+370 60998655
Pažymėti

81.22 a sklypas Vilnius, Paneriai, Matiškių g.

Siūlyti kainą320 000 €
3 940 €/a
+2
Aprašymas
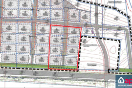
PARDUODAMAS 8 SKLYPŲ KVARTALAS PANERIUOSE!

VIETA IR APLINKA

• Vilniaus m., Paneriai, Matiškių g.

• Kaimynystėje naujos statybos gyvenamųjų namų kvartalai.

CHARAKTERISTIKOS

• Kvartalo plotas - 81,22 arai.

• 8 namų valdos sklypų plotai nuo 7,32 iki 9,12 arų.

• Užstatymas - 30-32 proc., intensyvumas - 0,4.

• Sklypai su nuolydžiu.

KOMUNIKACIJOS

• Į kvartalą atvesta elektra.

• Šalia nutiesti miesto vandentiekio ir nuotekų tinklai.

SUSISIEKIMAS

• Iki asfaltuotos gatvės 50 metrų.

• Iki Vilniaus miesto centro 16 kilometrų arba 20 minučių automobiliu.

Kontaktinis asmuo - Vidmantas Pundzius, mob. 8 609 98 655, el. p. [email protected]. Daugiau pasiūlymų www.apus.lt.
Rodyti daugiau
Papildoma informacija
Kaina
320 000 €
1 aro kaina
3939.92 €
Adresas
Vilnius, Paneriai, Matiškių g.
Paskirtis
Namų valda
Sklypo plotas
81.22 a
Ypatybės
Elektra, Dujos, Vanduo, Kanalizacija
Būsto paskolos skaičiuoklė
Nekilnojamojo turto kaina
Pradinis įnašas
%
15% 100%
Paskolos laikotarpis
metų
1 metai 30 metų
Banko marža
%
Euribor
%
Apytikslė įmoka
0 € / mėn.
Rodomas rezultatas yra informacinis ir remiasi apytikriais skaičiavimais. Įkeistas turtas turi būti apdraustas. Notarų mokesčiai, turto vertinimo ir draudimo išlaidos bankui nėra žinomi, todėl nėra įskaičiuojami į bendros paskolos kainos metinę normą palūkanų normą.
Pardavėjas: NT brokeris/statytojo atstovas
Vilnius
+370 60998655
Įdėtas: Redaguotas: Parodė / Perskaitė: 115 / 4 Skelbimo ID: 68665757
Užsiregistravo: 2011-12-01