Visi miestai
Visi miestai
Parduoda
└ Parduoda └ Butai └ Nekilnojamasis turtas └ Visi skelbimai Transportas Nekilnojamasis turtas Statyba, remontas Viskas namams Telefonai Darbas, mokslas Technika Laisvalaikis Drabužiai Kompiuterija Verslas Viskas nemokamai Prekės vaikams
Vilnius| Lazdynai| Architektų g.
228 000 €
84 m²| 3 kamb.| 1970 m.| 1 / 5 a.
+370 65601477
Pažymėti

ERDVUS 84 kv. m 3 kamb. PREMIUM LYGIO BUTAS LAZDYNUOSE

Siūlyti kainą228 000 €
2 714 €/m²
+14
Aprašymas
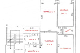
84 kv. m perplanuotas ir kokybiškai suremontuotas butas – puikus pasirinkimas šeimai, vertinančiai natūralią šviesą, funkcionalumą ir komfortą. Už prieinamą kainą gaunate premium lygio būstą, pilnai atitinkantį šiuolaikinio išplanavimo, dizaino ir kokybės standartus – galima įsikelti iš karto, be papildomų investicijų.

Virtuvė sujungta su valgomojo erdve (~20 kv. m) – funkcionalus namų centras kasdieniams susibūrimams. Greta – erdvi 22 kv. m svetainė su darbo zona. 18 kv. m tėvų miegamasis su atskira makiažo zona, 12 kv. m vaikų kambarys orientuotas į miškelį. Tvarką palaiko 2,4 kv. m drabužinė, erdvus 6 kv. m vonios kambarys.

Vitrininiai langai iki grindų suteikia daug natūralios šviesos ir vaizdus į žalumą. Šiltintos ir išbetonuotos grindys su natūraliomis parketlentėmis. Pirmas aukštas patogus šeimoms su vaikais, augintiniams ir senjorams. Priklauso 3,4 kv. m sandėliukas rūsyje, namą administruoja 551-oji DNSB.

Rami, žalia aplinka – pietinėje pusėje medžiais apaugęs šlaitas, šiaurinėje – miškelis. Lazdynai – vienas žaliausių Vilniaus rajonų, šalia parkai, mokyklos, darželiai ir patogus susisiekimas su centru.

Parduoda šeimininkas, be tarpininkų. Derybos galimos vietoje po apžiūros.
Kviečiu susisiekti ir atvykti apžiūrėti.
Rodyti daugiau
Papildoma informacija
Kaina
228 000 €
Adresas
Vilnius, Lazdynai, Architektų g.
Kambarių skaičius
3
Būsto būklė
Įrengtas
Šildymas
Centrinis
Buto aukštas
1
Aukštų skaičius pastate
5
Statybos metai
1970
Namo tipas
Blokinis
Būsto plotas
84 m²
Ypatybės
Virtuvė sujungta su kambariu, Nauja elektros instaliacija, Nauja kanalizacija, Internetas
Papildomos patalpos
Drabužinė, Rūsys, Sandėliukas
Papildoma įranga
Indaplovė, Plastikiniai vamzdžiai, Virtuvės komplektas, Vonia
Apsauga
Šarvuotos durys, Kodinė laiptinės spyna
Kaina, €
228000 €
Kaina, €/m²
2714 €/m²
Namo numeris
105    
Būsto paskolos skaičiuoklė
Nekilnojamojo turto kaina
Pradinis įnašas
%
15% 100%
Paskolos laikotarpis
metų
1 metai 30 metų
Banko marža
%
Euribor
%
Apytikslė įmoka
0 € / mėn.
Rodomas rezultatas yra informacinis ir remiasi apytikriais skaičiavimais. Įkeistas turtas turi būti apdraustas. Notarų mokesčiai, turto vertinimo ir draudimo išlaidos bankui nėra žinomi, todėl nėra įskaičiuojami į bendros paskolos kainos metinę normą palūkanų normą.
Vieta žemėlapyje
Įdėtas: Redaguotas: Parodė / Perskaitė: 5542 / 558 Skelbimo ID: 68711515
Užsiregistravo: 2025-12-16
Vartotojo reitingas: Sidabrinis
0