PARDUODAMAS PRADĖTAS STATYTI A++ KLASĖS NAMAS SU ŪKINIU PASTATU BEI GARAŽU ANT ERDVAUS 27 ARŲ SKLYPO ŠALIA MIŠKO!
PRIVALUMAI:
- Gautas statybos leidimas ir išlieti pamatai;
- Visiškai nuošali vieta su keliais kaimynais už 500 metrų;
- Supiltas ir sutvirtintas kelias, kuriuo patekimas iki sklypo galimas visais metų laikais;
- Patogi vieta tarp dviejų didmiesčių;
NAMO PROJEKTAS:
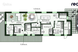
- Gyvenamojo pastato plotas: 134.31 m²;
- A++ energetinio naudingumo klasę;
- Aukštai: 1;
- Tambūtas: 6.54 m²;
- Skalbykla.katilinė: 9.24 m²;
- Vaikų kambarys: 13.13 m² ;
- Vaikų kambarys: 13.12 m² ;
- Vonia: 6.60 m².;
- Wc/dušas: 4,14 m².;
- Rubinė: 6.57 m² ;
- Miegamasis: 11.18 m²;
- Darbo kambarys: 7.25 m² ;
- Svetainė/valgomasis: 37.81 m² ;
- Virtuvė: 18.74 m² ;
KARTU SU PARTNERIAIS GALIME PASIŪLYTI STATYBŲ UŽBAIGIMO DARBUS IR ĮRENGTI NAMĄ PAGAL JŪSŲ POREIKIUS!
PAGALBINIO/ŪKINIO PASTATO PROJEKTAS:
- Bendras plotas: 76.31 m²;
- Garažas: 44.40 m² ;
- Tambūras: 2.47 m²;
- WC: 2.18 m²;
- Pagalbinė patalpa: 27.27 m².
SKLYPAS:
- Adresas: Kaišiadorių r. Kaugonys, Šilų g.;
- Plotas: 27 a;
- Paskirtis: Namų valda (gyvenamosios teritorijos);
- Žemės sklypas suformuotas atliekant kadastrinius matavimus;
- Atvesta elektra;
Koordinatės: 54°50'03.8"N 24°44'28.6"E
Susisiekite Jums patogiu būdu bei metu.
Kymantas Vitkauskas
+370 603 56 049
[email protected]Dirbame komandiškai ir siekiame geriausių rezultatų visuose NT segmentuose. Perteikiame kokybiškas paslaugas tiek mažos, tiek didžiausios vertės nekilnojamojo turto objektams.
Mūsų komanda:
• Tarpininkauja parduodant ir perkant visų segmentų NT iki galutinio notarinio sandorio.
• Gali pasiūlyti tai ko nėra skelbimų portaluose.
• Ieško Jūsų poreikius atitinkančio NT.
• Tarpininkauja (išsi)nuomojant NT ir nuomos laikotarpio metu.
• Tikrina ir ruošia sandoriui reikalingą dokumentaciją.
• Konsultuoja kainos, NT mokesčių, paveldėjimo, pardavimo, įsigijimo ir perspektyvos klausimais.
• Suteikia plataus spektro NT projektų valdymo ir įgyvendinimo paslaugas nepriklausomai nuo paskirties ir apimčių.
• Padeda finansavimo klausimais ir gali pasiūlyti išskirtines sąlygas.
• Konsultuoja ir padedade įsigyti NT užsienyje.
REALA – profesionali, sąžininga ir atsakingai veikianti nekilnojamojo turto agentūra visoje Lietuvoje!
Reala.lt