Visi miestai
Visi miestai
Parduoda
└ Parduoda └ Sklypai, miškai └ Nekilnojamasis turtas └ Visi skelbimai Transportas Nekilnojamasis turtas Statyba, remontas Viskas namams Telefonai Darbas, mokslas Technika Laisvalaikis Drabužiai Kompiuterija Verslas Viskas nemokamai Prekės vaikams
Kauno r. sav.| Ringaudai
184 000 €
21.32 a| Komercinė| Be pastatų
+370 60647178
Pažymėti

Komercinės paskirties sklypas Ringauduose Kauno r.

Siūlyti kainą184 000 €
8 630 €/a
+9
Aprašymas
PARDUODAMAS KOMERCINĖS PASKIRTIES 21,32 ARŲ SKLYPAS STRATEGIŠKAI PATOGIOJE VIETOJE – KAUNO R., RINGAUDUOSE.

ADRESAS: Kauno r., Ringaudai, Saulės tak. 10.
• Paskirtis: kita/komercinės paskirties objektų teritorijos;
• Komunikacijos: visos miesto komunikacijos (elektra, vandentiekis, kanalizacija, gamtinės dujos, ryšio kabeliai) – šalia sklypo;
• Atlikti geodeziniai matavimai.

PRIVALUMAI:
• Sklypas strategiškai patogioje, gerai matomoje vietoje, prie Šakių plento (Šakiai–Zapyškis–Kaunas), tinkamas komerciniam pastatui statyti;
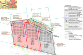
• Pagal detalųjį planą, padidintoje užstatymo teritorijoje galima statyti dviaukštį pastatą (pateiktos ~700 kv.m pastato vizualizacijos su galima plėtra).
• Perspektyvi vieta: Saulės tako gatvėje įsikūrę LIDL, prekybiniai kioskai, gyvenamieji namai, o kitoje Šakių plento pusėje – Maxima, IKI, Pilėnų klinika ir kiti komerciniai objektai;
• Aplinkui sparčiai kuriasi naujos įmonės ir gyvenamieji kvartalai;
• Privažiavimas per Saulės tako gatvę nuo Ringaudų žiedinės sankryžos asfaltuotu keliu;
• Patogus susisiekimas – vos 10 min. (8 km) iki Kauno centro.

Papildomai galima įsigyti šalia esantį 21,09 arų sklypą, bendras abiejų sklypų plotas – 42,41 arai.

DĖL APŽIŪROS AR PAPILDOMOS INFORMACIJOS SKAMBINKITE: +370 606 47178,
nekilnojamojo turto brokerė Gintarė Gudaitytė.
Rodyti daugiau
Papildoma informacija
Kaina
184 000 €
1 aro kaina
8630.39 €
Adresas
Kauno r. sav., Ringaudai
Paskirtis
Komercinė
Sklypo plotas
21.32 a
Pastatai
Be pastatų
Būsto paskolos skaičiuoklė
Nekilnojamojo turto kaina
Pradinis įnašas
%
15% 100%
Paskolos laikotarpis
metų
1 metai 30 metų
Banko marža
%
Euribor
%
Apytikslė įmoka
0 € / mėn.
Rodomas rezultatas yra informacinis ir remiasi apytikriais skaičiavimais. Įkeistas turtas turi būti apdraustas. Notarų mokesčiai, turto vertinimo ir draudimo išlaidos bankui nėra žinomi, todėl nėra įskaičiuojami į bendros paskolos kainos metinę normą palūkanų normą.
Vieta žemėlapyje
Įdėtas: Redaguotas: Parodė / Perskaitė: 2410 / 111 Skelbimo ID: 68242187
Gintarė
Užsiregistravo: 2011-10-24
0