Visi miestai
Visi miestai
Parduoda
└ Parduoda └ Patalpos └ Nekilnojamasis turtas └ Visi skelbimai Transportas Nekilnojamasis turtas Statyba, remontas Viskas namams Telefonai Darbas, mokslas Technika Laisvalaikis Drabužiai Kompiuterija Verslas Viskas nemokamai Prekės vaikams
Vilnius| Naujininkai| Kapsų g.
349 000 €
100 m² | 1 a. | Biuro, Paslaugų, Prekybos, Kitos paskirties | Centrinis, Geoterminis
+370 67111480
Pažymėti

Parduodamos grožio paslaugų veiklai pritaikytos patalpos

Siūlyti kainą349 000 €
3 490 €/m²
+7
Aprašymas
NAUJOS STATYBOS NAME, KAPSŲ G. 11, PARDUODAMOS GROŽIO PASLAUGŲ VEIKLAI VYKDYTI PRITAIKYTOS PATALPOS, su joms priklausančia terasa vidiniame kieme. Perspektyvi vieta vystyti verslą. Šalia – traukos centrais tapę „LIDL“, „IKI“, „MAXIMA“ prekybos centrai, generuojantys didelį automobilių ir žmonių srautą.
Pastatas strategiškai patogioje vietoje, judrioje Vilniaus miesto dalyje, lengvai pasiekiamas tiek automobiliu, tiek viešuoju transportu.

PATALPOS ŠIUO METU IŠNUOMOTOS ILGALAIKIAM NUOMININKUI.
(Skelbimo nuotraukos darytos prieš išnuomojant patalpas nuomininkui. Jos šiuo metu yra perplanuotos ir pritaikytos grožio paslaugų veiklai.)

Geras matomumas nuo gatvės, vitrininiai langai. Numatyta vieta reklaminei iškabai. Atskiras įėjimas į patalpas iš Kapsų gatvės ir vidinio kiemo. Priklauso 2 parkavimo vietos.

BENDRA INFORMACIJA
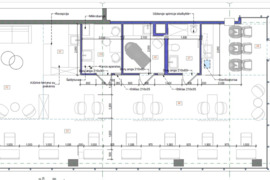
Vientisa erdvė, I-ame aukšte, taisyklingos stačiakampio formos. Įrengtos: yra recepcija, manikiūro stalai, kirpimo kėdės, vienas atskiras kosmetologinis kabinetas (išvedžiotos visos komunikacijos), persirengimo kambarys darbuotojams.

Parduodamas plotas: 100 kv. m + 30 kv. m terasos ploto, kuris neįskaičiuojamas į bendrą plotą.
• Aukštas: 1/7
• Terasa: 30 kv. m
• Vitrininiai langai iš trijų pusių (vakarinė ir pietinė)
• Visos miesto komunikacijos
• Įrengta galinga kondicionavimo–rekuperacijos sistema, kurios galia atitinka grožio salonams ir viešojo maitinimo įstaigoms taikomus reikalavimus
• Grindys – plytelės, šildomos
• Šviesolaidinis internetas
• Signalizacija
• Dvi parkavimo vietos uždaroje aikštelėje

PRIVALUMAI
• Geras matomumas nuo gatvės
• Išskirtinė vieta rajone
• Nauja statyba, A++ energetinio naudingumo klasė
• Vitrininiai langai
• Du atskiri įėjimai
• Puikus susisiekimas
• Vieta reklaminei iškabai
• Ekonomiškos komunalinės paslaugos
• Dideli automobilių ir žmonių srautai

PARKAVIMAS
• Priskirtos automobilių stovėjimo vietos šalia patalpų

KAINA
Objekto pardavimo kaina: 349 000 Eur + PVM.
Patalpų pajamingumas kainai įtakos neturi. Galutinė kaina – derybų objektas.
Galima pirkti NT, arba įmonės akcijas su hipoteka.

Daugiau informacijos: el. paštu [email protected]
Rodyti daugiau
Papildoma informacija
Kaina
349 000 €
Adresas
Vilnius, Naujininkai, Kapsų g.
Patalpų paskirtis
Kitos paskirties, Biuro, Prekybos, Paslaugų
Įrengimas
Įrengta
Patalpų plotas
100 m²
Aukštas
1
Aukštų skaičius
7
Šildymas
Centrinis, Geoterminis
Statybos metai
2021
Ypatybės
Vitrininiai langai, Asfaltuotas privažiavimas, Atskiras įėjimas, Įėjimas iš gavės, Vieta automobiliui, Elektra, Vanduo, Galima keisti išplanavimą
Papildoma įranga
Kondicionierius, Internetas, Telefono ryšys
Apsauga
Aptverta teritorija, Vaizdo kameros, Signalizacija
Būsto paskolos skaičiuoklė
Nekilnojamojo turto kaina
Pradinis įnašas
%
15% 100%
Paskolos laikotarpis
metų
1 metai 30 metų
Banko marža
%
Euribor
%
Apytikslė įmoka
0 € / mėn.
Rodomas rezultatas yra informacinis ir remiasi apytikriais skaičiavimais. Įkeistas turtas turi būti apdraustas. Notarų mokesčiai, turto vertinimo ir draudimo išlaidos bankui nėra žinomi, todėl nėra įskaičiuojami į bendros paskolos kainos metinę normą palūkanų normą.
Vieta žemėlapyje
Įdėtas: Redaguotas: Parodė / Perskaitė: 1490 / 61 Skelbimo ID: 68482851
Užsiregistravo: 2016-10-18
0