Visi miestai
Visi miestai
Nuomoja
└ Nuomoja └ Patalpos └ Nekilnojamasis turtas └ Visi skelbimai Transportas Nekilnojamasis turtas Statyba, remontas Viskas namams Telefonai Darbas, mokslas Technika Laisvalaikis Drabužiai Kompiuterija Verslas Viskas nemokamai Prekės vaikams
2 000 € / mėn.
600.0 m² | 1 a. | Gamybos, Sandėliavimo
+370 65441384
Pažymėti

Patalpos Kaunas, Petrašiūnai, R. Kalantos g.

Siūlyti kainą2 000 €/mėn.
+2
Aprašymas
IŠNUOMOJAMOS SANDĖLIAVIMO / GAMYBINĖS PATALPOS
Nuomojamos erdvios patalpos, nuo 500 m², puikiai tinkančios sandėliavimui, gamybai ar logistikai. Taip pat galima nuomoti papildomas 100 m² ofiso patalpas kurios yra antrame aukšte. Viskas gali būti pritaikyta pagal jūsų poreikius – nuo biuro iki sandėliavimo ar gamybinių veiklų.
Patalpos šviesios, aukštos, su naujai išlietomis pramoninio betono grindimis, naujas apšildytas stogas. Patalpų plotą galime pritaikyti pagal jūsų veiklą. Nuomojantis pas mus – galime padėti jūsų verslui su papildomomis investicijomis. Galimas finansavimas.
PRIVALUMAI:

– Strategiškai patogi vieta, šalia viešojo transporto (autobusų stotelė)

– Aptverta, saugi teritorija su automatiniais vartais

– Galimybė įsirengti automobilių aikštelę

– Elektros įvadas 40 kW, yra galimybė didinti

– Šiuo metu įrengimo lygis leidžia planuoti erdves pagal individualius poreikius
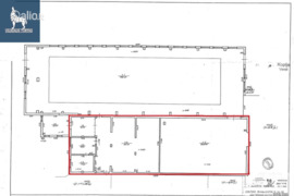
PASTATAS IR IŠPLANAVIMAS:

– Pagrindinės patalpos – pirmame aukšte

– Plotas – ~600/700 m²

– Žemės sklypas – 0.5831 ha.

– Didesnė salė – ~500 m², mažesnė ~150 m².

– Atnaujintas pastatas 2024 m.

– Bendras įėjimas į patalpas
BIURO PATALPOS:

– II aukštas – ~100 m².
Tinka tiek smulkiai, tiek stambesnei sandėliavimo veiklai:

– Įvairių prekių laikymui

– Prekių ir žaliavų sandėliavimui

– Logistikai, prekiniam paskirstymui

– Ilgalaikiam saugojimui

– E. prekybos sandėliui
Gamybai / Dirbtuvėms:

Dėl tvirtų grindų ir erdvės puikiai tinka:

– Baldų gamybai

– Surinkimo darbams

– Metalo ar medžio dirbtuvėms

– Elektronikos, technikos remontui

– Autoserviso pagalbinėms patalpoms
NUOMOS KAINA:

– Nuo 3,5 -4 €/m² + PVM.

kaina derinama individualiai apžiūros metu.
Nekilnojamojo turto brokerė

Greta Simonavičiūtė

+37065441384

Vilniaus Turtas
Rodyti daugiau
Papildoma informacija
Kaina
2 000 €
Adresas
Kaunas, Petrašiūnai, R. Kalantos g.
Patalpų paskirtis
Gamybos, Sandėliavimo
Įrengimas
Įrengta
Patalpų plotas
600.0 m²
Aukštas
1
Aukštų skaičius
2
Statybos metai
1967
Ypatybės
Elektra
Būsto paskolos skaičiuoklė
Nekilnojamojo turto kaina
Pradinis įnašas
%
15% 100%
Paskolos laikotarpis
metų
1 metai 30 metų
Banko marža
%
Euribor
%
Apytikslė įmoka
0 € / mėn.
Rodomas rezultatas yra informacinis ir remiasi apytikriais skaičiavimais. Įkeistas turtas turi būti apdraustas. Notarų mokesčiai, turto vertinimo ir draudimo išlaidos bankui nėra žinomi, todėl nėra įskaičiuojami į bendros paskolos kainos metinę normą palūkanų normą.
Vieta žemėlapyje
Pardavėjas: NT brokeris/statytojo atstovas
Kaunas
+370 65441384
Įdėtas: Redaguotas: Parodė / Perskaitė: 55 / 4 Skelbimo ID: 68703343
Užsiregistravo: 2025-10-22