Visi miestai
Visi miestai
Nuomoja
└ Nuomoja └ Patalpos └ Nekilnojamasis turtas └ Visi skelbimai Transportas Nekilnojamasis turtas Statyba, remontas Viskas namams Telefonai Darbas, mokslas Technika Laisvalaikis Drabužiai Kompiuterija Verslas Viskas nemokamai Prekės vaikams
80 € / mėn.
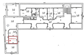
14.44 m² | 4 a. | Prekybos, Biuro
+370 61480065
Pažymėti

Patalpos Panevėžys, Panevėžys, Stoties g.

Siūlyti kainą80 €/mėn.
Aprašymas
Patalpos verslo centre.
Išnuomojamos komercinės paskirties patalpos, esančios Stoties g. Panevėžyje. Tvarkingos, įrengtos, jaukios 14,44 kv.m ploto patalpos yra komercinio pastato ketvirtame aukšte.
PRIVALUMAI
● Erdvios ir šviesios patalpos, lengvai pritaikomos įvairiai veiklai;
● Pastate yra išnuomota daug įvairių patalpų
● Šalia pastato yra didelė automobilių parkavimo aikštelė
● Pastate yra veikianti valgykla
BENDRA INFORMACIJA
● Patalpa 14,44 kv.m;
● Šildymo tipas: centrinis kolektorinis (radiatorinis).
PASTATO INFORMACIJA
● Statybos metai: 1997;
● Tvarkinga, itin erdvi, šviesi laiptinė;
VIETA IR INFRASTRUKTŪRA
● S. Kerbedžio ir Stoties gatvių kampinis sklypas, šalia geležinkelio stoties;
● 2 km iki miesto centro;
Nuomos kaina 80 Eur/mėn. -- Objekto nr. Ober-Haus tinklapyje www.ober-haus.lt/OH418240
Premises in a business center. Commercial premises for rent located on Stoties st. in Panevėžys. Neat, furnished, cozy premises of 14.44 sq.m. are located on the fourth floor of a commercial building. ADVANTAGES ● Spacious and bright premises, easily adaptable for various activities; ● Many different premises are rented in the building ● There is a large parking lot next to the building ● There is a functioning canteen in the building GENERAL INFORMATION ● Premises 14.44 sq.m.; ● Heating type: central collector (radiator). BUILDING INFORMATION ● Year of construction: 1997; ● Neat, very spacious, bright staircase; LOCATION AND INFRASTRUCTURE ● Corner plot of S. Kerbedžio and Stoties streets, near the railway station; ● 2 km to the city center; Rental price 80 Eur/month. -- Offer no. in Ober-Haus webpage www.ober-haus.lt/OH418240
.
Rodyti daugiau
Papildoma informacija
Kaina
80 €
Adresas
Panevėžys, Panevėžys, Stoties g.
Patalpų paskirtis
Biuro, Prekybos
Patalpų plotas
14.44 m²
Aukštas
4
Būsto paskolos skaičiuoklė
Nekilnojamojo turto kaina
Pradinis įnašas
%
15% 100%
Paskolos laikotarpis
metų
1 metai 30 metų
Banko marža
%
Euribor
%
Apytikslė įmoka
0 € / mėn.
Rodomas rezultatas yra informacinis ir remiasi apytikriais skaičiavimais. Įkeistas turtas turi būti apdraustas. Notarų mokesčiai, turto vertinimo ir draudimo išlaidos bankui nėra žinomi, todėl nėra įskaičiuojami į bendros paskolos kainos metinę normą palūkanų normą.
Vieta žemėlapyje
Pardavėjas: NT brokeris/statytojo atstovas
Panevėžys
+370 61480065
Įdėtas: Redaguotas: Parodė / Perskaitė: 847 / 75 Skelbimo ID: 67930911