Visi miestai
Visi miestai
Nuomoja
└ Nuomoja └ Patalpos └ Nekilnojamasis turtas └ Visi skelbimai Transportas Nekilnojamasis turtas Statyba, remontas Viskas namams Telefonai Darbas, mokslas Technika Laisvalaikis Drabužiai Kompiuterija Verslas Viskas nemokamai Prekės vaikams
589 € / mėn.
69.3 m² | 4 a. | Biuro
+370 64074367
Pažymėti

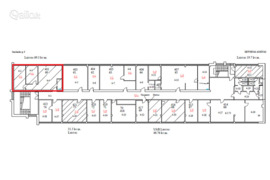
Patalpos Vilnius, Naujamiestis, Smolensko g.

Siūlyti kainą589 €/mėn.
Aprašymas
Nuomojamos patalpos ""Skrajos"" verslo centre Smolensko - Žemaitės g. sandūroje
Patalpos jau laisvos.
Tikslus adresas Smolenkso g. 6.
Bendra informacija:
Patalpų naudingas plotas 69,3 kv.m.
Aukštas 4.
Nuomos kaina 8,5 Eur/kv.m. + PVM
Išplanavimas:
3 atskiros erdvės su atskirta virtuvės zona;
WC bendri aukšto koridoriaus pabaigoje.
Parkavimas:
Kaina 45 Eur/vnt. + PVM. lauko aikštelėje;
Klientams numatyta 2val nemokamo parkavimo vidiniame kieme;
Infrastruktūra:
Susisiekimas patogus ir greitas viešuoju ir individualiu transportu pagrindinėmis Savanorių pr. ir Geležinio vilko gatvėmis.
Aplink iš visų pusių nukloti dviračių takai ragina rinktis alternatyvias transporto priemones.
Rodyti daugiau
Papildoma informacija
Kaina
589 €
Adresas
Vilnius, Naujamiestis, Smolensko g.
Patalpų paskirtis
Biuro
Patalpų plotas
69.3 m²
Aukštas
4
Būsto paskolos skaičiuoklė
Nekilnojamojo turto kaina
Pradinis įnašas
%
15% 100%
Paskolos laikotarpis
metų
1 metai 30 metų
Banko marža
%
Euribor
%
Apytikslė įmoka
0 € / mėn.
Rodomas rezultatas yra informacinis ir remiasi apytikriais skaičiavimais. Įkeistas turtas turi būti apdraustas. Notarų mokesčiai, turto vertinimo ir draudimo išlaidos bankui nėra žinomi, todėl nėra įskaičiuojami į bendros paskolos kainos metinę normą palūkanų normą.
Vieta žemėlapyje
Pardavėjas: NT brokeris/statytojo atstovas
Vilnius
+370 64074367
Įdėtas: Redaguotas: Parodė / Perskaitė: 110 / 20 Skelbimo ID: 68450187
Užsiregistravo: 2022-11-10