Visi miestai
Visi miestai
Nuomoja
└ Nuomoja └ Patalpos └ Nekilnojamasis turtas └ Visi skelbimai Transportas Nekilnojamasis turtas Statyba, remontas Viskas namams Telefonai Darbas, mokslas Technika Laisvalaikis Drabužiai Kompiuterija Verslas Viskas nemokamai Prekės vaikams
11 076 € / mėn.
1846.0 m² | 1 a. | Biuro, Gamybos, Sandėliavimo, Prekybos | Dujinis
+370 61683838
Pažymėti

Patalpos Vilnius, Naujininkai, Dariaus ir Girėno g.

Siūlyti kainą11 076 €/mėn.
+6
Aprašymas
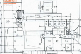
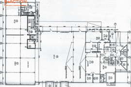
IŠPLANAVIMAS :

- Bendras plotas – 1846,73 kv.m
- Sandėlio plotas 1a – 822 kv.m
- Administracinių/Prekybinių patalpų plotas 1a - 384 kv.m (administracinės patalpos, san.mazgai, persirengimo kambariai, virtuvėlė, pagalbinės patalpos)
- Sandėlio plotas 2a - 182 kv.m (yra krovininkis liftas)
- Administracinių/Prekybinių patalpų plotas 2a - 458 kv.m (administracinės patalpos, san.mazgai, pagalbinės patalpos)
- 2 hidraulinės rampos
- Pandusas mikroautobusams
- Didelė parkavimo ir sandėliavimo aikštelė
TECHNINĖS CHARAKTERISTIKOS:
- Darbinis sandėlio aukštis – 7.7 m
- 1 hidraulinė rampa 410 kv.m. sandėlio plotui
- Rekuperacinė vėdinimo ir šaldymo sistema
- Sprinklerinė priešgaisrinė sistema
- Vietinis dujinis šildymas
- Šlifuoto betono grindys
PAPILDOMA INFORMACIJA:
- Aptverta teritorija
- Matomumas nuo Dariaus ir Girėno g. – galima reklaminė iškaba
- Išvažiavimas į Vakarinį aplikkelį 0,5 km
- Asfaltuotas privažiavimas
- Gyva apsauga, vaizdo stebėjimo sistema, signalizacija
- Viešojo transporto stotelė už 400 m
- Greta Vilnius oro uostas
Rodyti daugiau
Papildoma informacija
Kaina
11 076 €
Adresas
Vilnius, Naujininkai, Dariaus ir Girėno g.
Patalpų paskirtis
Biuro, Prekybos, Gamybos, Sandėliavimo
Įrengimas
Įrengta
Patalpų plotas
1846.0 m²
Aukštas
1
Aukštų skaičius
2
Šildymas
Dujinis
Statybos metai
1999
Ypatybės
Įėjimas iš gavės, Elektra, Dujos, Vanduo
Papildoma įranga
Su baldais, Internetas, Telefono ryšys, Krovininis liftas
Apsauga
Signalizacija
Būsto paskolos skaičiuoklė
Nekilnojamojo turto kaina
Pradinis įnašas
%
15% 100%
Paskolos laikotarpis
metų
1 metai 30 metų
Banko marža
%
Euribor
%
Apytikslė įmoka
0 € / mėn.
Rodomas rezultatas yra informacinis ir remiasi apytikriais skaičiavimais. Įkeistas turtas turi būti apdraustas. Notarų mokesčiai, turto vertinimo ir draudimo išlaidos bankui nėra žinomi, todėl nėra įskaičiuojami į bendros paskolos kainos metinę normą palūkanų normą.
Vieta žemėlapyje
Pardavėjas: NT brokeris / Agentūros atstovas
Vilnius
+370 61683838
Įdėtas: Redaguotas: Parodė / Perskaitė: 416 / 32 Skelbimo ID: 67153419