Visi miestai
Visi miestai
Nuomoja
└ Nuomoja └ Patalpos └ Nekilnojamasis turtas └ Visi skelbimai Transportas Nekilnojamasis turtas Statyba, remontas Viskas namams Telefonai Darbas, mokslas Technika Laisvalaikis Drabužiai Kompiuterija Verslas Viskas nemokamai Prekės vaikams
2 300 € / mėn.
200.00 m² | 2 a. | Biuro
+370 68677780
Pažymėti

Patalpos Vilnius, Senamiestis, Pylimo g.

Siūlyti kainą2 300 €/mėn.
+6
Aprašymas
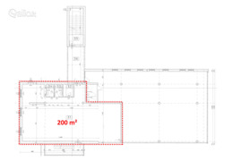
IŠNUOMOJAMOS 200 KV.M BIURO PATALPOS PYLIMO G., SENAMIESTYJE
Vieta: Pylimo g. 58, Vilnius;
Plotas: 200 m²;
Paskirtis: administracinė.
Patalpos yra išsidėsčiusios 2-me aukšte. Patalpas sudaro viena didelė bendra erdvė, atskiras vadovo kabinetas ir du san. mazgai. Yra visi komunikacijos tinklai, ventiliacijos ir kondicionavimo, apsaugos ir priešgaisrinė sistemos. Šildymas - centrinis. Patalpos nuomojamos be baldų. Yra galimybė kabinti reklaminę iškabą ant pastato. Šalia patalpų yra didelė automobilių stovėjimo aikštelė, kurią administruoja Unipark.
NUOMOS KAINA: 2300 Eur + PVM + komunaliniai. -- Objekto nr. Ober-Haus tinklapyje www.ober-haus.lt/OH492863
OFFICE ROOM FOR RENT 200 SQUARE METERS PYLIMO STR., OLD City Location: Pylimo st. 58, Vilnius; Area: 200 m²; Purpose: administrative. The premises are located on the 2nd floor. The premises consist of one large common space, a separate manager's office and two bedrooms. knots There are all communication networks, ventilation and conditioning, security and fire protection systems. Heating - central. The premises are rented without furniture. It is possible to hang an advertising sign on the building. Next to the premises there is a large car park managed by Unipark. RENT PRICE: 2300 Eur + VAT + utilities. -- Offer no. in Ober-Haus webpage www.ober-haus.lt/OH492863
.
Rodyti daugiau
Papildoma informacija
Kaina
2 300 €
Adresas
Vilnius, Senamiestis, Pylimo g.
Patalpų paskirtis
Biuro
Patalpų plotas
200.00 m²
Aukštas
2
Būsto paskolos skaičiuoklė
Nekilnojamojo turto kaina
Pradinis įnašas
%
15% 100%
Paskolos laikotarpis
metų
1 metai 30 metų
Banko marža
%
Euribor
%
Apytikslė įmoka
0 € / mėn.
Rodomas rezultatas yra informacinis ir remiasi apytikriais skaičiavimais. Įkeistas turtas turi būti apdraustas. Notarų mokesčiai, turto vertinimo ir draudimo išlaidos bankui nėra žinomi, todėl nėra įskaičiuojami į bendros paskolos kainos metinę normą palūkanų normą.
Vieta žemėlapyje
Pardavėjas: NT brokeris/statytojo atstovas
Vilnius
+370 68677780
Įdėtas: Redaguotas: Parodė / Perskaitė: 300 / 26 Skelbimo ID: 68370671