Visi miestai
Visi miestai
Parduoda
└ Parduoda └ Patalpos └ Nekilnojamasis turtas └ Visi skelbimai Transportas Nekilnojamasis turtas Statyba, remontas Viskas namams Telefonai Darbas, mokslas Technika Laisvalaikis Drabužiai Kompiuterija Verslas Viskas nemokamai Prekės vaikams
190 000 €
77.94 m² | 1 a. | Biuro | Centrinis
+370 68584631
Pažymėti

Patalpos Vilnius, Šnipiškės, Kernavės g.

Siūlyti kainą190 000 €
2 438 €/m²
+2
Aprašymas
PARDUODAMOS KOMERCINĖS PATALPOS NAUJAME PROJEKTE, KERNAVĖS G. 17, VILNIUS, ŠNIPIŠKĖS.
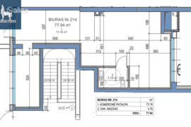
Patalpos Nr. 214

Patalpos plotas: 77,94 kv.m

Aukštas: cokolinis ( su virtininiais langais) nuo Kernavės g. pusės

Faktiškai tai yra 1 aukštas.

Lubų aukštis: 2,38 m

Kaina tik 2 437,77 Eur/ kv.m ( įskaitant PVM)
Šviesios, jaukios, mažomis eksploatacinėmis išlaidomis pasižyminčios patalpos.

Yra atskiras įėjimas ir labai dideli langai. Puikus matomumas nuo Kernavės gatvės.
Vidaus pertvarų išdėstymą galima keisti pagal savo poreikius.

Patalpos jau pastatytos/priduotos.
Parduodamos komercinės patalpos projekte pasižymi šiomis unikaliomis savybėmis:

- Aukšta energetinė klasė "A"

- Atskirti įėjimai;

- Vitrininiai langai;

- Autonominė šilumos apskaita;

- Įrengta oro rekuperacinė vėdinimo sistema;

- Langai į gatvę- Kernavės g.
TURIME IR DAUGIAU PATALPŲ ŠIAME PROJEKTE:

- Patalpų plotai nuo 44 kv. m iki 400 kv. m.

- Yra patalpų per 2 aukštus;

- Galima plėtoti paslaugų ir prekybos verslus. Idealiai tinkamos biurui.
PASTABA:

- Galima įsigyti ir požeminių parkavimo vietų ir sandėliavimo patalpų (sandėliukų);
Patalpos tinkamos susikurti unikalią savo erdvę miesto centre su dideliu žmonių srautu ir langais į NAUJĄ Kernavės g.
Mūrinis namas suteikia 100 metų ilgaamžiškumo ramybę ir išskirtines išplanavimo galimybes.
Kontaktai pasiteiravimui:

Antanas 868584631

Kernavės g. 17, Vilnius

[email protected]

www.vilniaus-turtas.lt
Rodyti daugiau
Papildoma informacija
Kaina
190 000 €
Adresas
Vilnius, Šnipiškės, Kernavės g.
Patalpų paskirtis
Biuro
Įrengimas
Dalinė apdaila
Patalpų plotas
77.94 m²
Aukštas
1
Aukštų skaičius
7
Šildymas
Centrinis
Ypatybės
Įėjimas iš gavės, Elektra, Vanduo
Papildoma įranga
Internetas, Telefono ryšys
Apsauga
Signalizacija
Būsto paskolos skaičiuoklė
Nekilnojamojo turto kaina
Pradinis įnašas
%
15% 100%
Paskolos laikotarpis
metų
1 metai 30 metų
Banko marža
%
Euribor
%
Apytikslė įmoka
0 € / mėn.
Rodomas rezultatas yra informacinis ir remiasi apytikriais skaičiavimais. Įkeistas turtas turi būti apdraustas. Notarų mokesčiai, turto vertinimo ir draudimo išlaidos bankui nėra žinomi, todėl nėra įskaičiuojami į bendros paskolos kainos metinę normą palūkanų normą.
Vieta žemėlapyje
Pardavėjas: NT brokeris/statytojo atstovas
Vilnius
+370 68584631
Įdėtas: Redaguotas: Parodė / Perskaitė: 725 / 19 Skelbimo ID: 66946279
Vilniaus turtas, UAB "Vilniaus Turtas"
Užsiregistravo: 2016-02-28