Visi miestai
Visi miestai
Parduoda
└ Parduoda └ Namai, kotedžai, sodybos └ Nekilnojamasis turtas └ Visi skelbimai Transportas Nekilnojamasis turtas Statyba, remontas Viskas namams Telefonai Darbas, mokslas Technika Laisvalaikis Drabužiai Kompiuterija Verslas Viskas nemokamai Prekės vaikams
210 000 €
65.45 m² | 13.0 a | Elektra | Mūrinis, Karkasinis
+370 67744431
Pažymėti

Vilniaus r. sav., Bajorai (Avižienių sen.), Mėtų g.

Siūlyti kainą210 000 €
3 209 €/m²
+18
Aprašymas
PARDUODAMAS 13 ARŲ SKLYPAS SU MODULINIU NAMU
Vieta - Vilniaus m., Mėtų g.

Asfaltuotas privažiavimas iki pat sklypo, aplinkui nauji namai, pastoviai gyvenantys kaimynai.

Sklype stovi modulinis namas 2023 m.

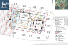
Sklypo bendras plotas - 13 arų:

11.96 arų - Vienbučių ir dvibučių gyvenamųjų pastatų teritorijos;

1.04 arai - Susisiekimo ir inžinerinių tinklų koridorių teritorijos.

Naudmenų našumo balais: 40.

Matavimų tipas: kadastriniai matavimai.

Elektra: yra.

Dujos: šalia sklypo.

Vanduo: gręžinys.

Kanalizacija: vietinė su BIO valymo įrenginiais.

Internetas: Telia šviesolaidis.
Sklype stovi modulinis namas, kuris registruotas kaip lauko virtuvė su terasa, bet galima užregistruoti kaip nama arba palikti kaip yra ir šalia pastatyti didesnį namą, yra projektas namui, kurio numatomas bendras plotas yra 168 kv.m.

ESAMAS NAMAS:

Miegamieji kambariai - 9.98 kv.m, 9.45 kv.m ir 8.86 kv.m;

Virtuvė su svetainė - 28.78 kv.m;

San.mazgas - 4.76 kv.m;

Katelinė - 3.62 kv.m;

Terasa - 35.25 kv.m.

Langai: 2-jų stiklų.

Namą įmanoma parduoti ir išvežti.
SUSISIEKIMAS:

Asfaltuotas privažiavimas iki pat sklypo.

Iki autobusų st. - 1.50 km (Mėtų st.);

Iki PC Rimi, PC Šilas - 1,50 km;

Iki Ukmergės plento - 2.60 km.

Iki Prekybos centro BIG (Pašilaičiai, Fabijoniškės) - 4 km.

Iki Vilniaus miesto centro - 10 km.
SKLYPO IR NAMO KAINA: 210000 EUR
Skambinkit, rašykit ir suteiksiu jums daugiau informacijos.

[email protected]

Rodyti daugiau
Papildoma informacija
Kaina
210 000 €
Adresas
Vilniaus r. sav., Bajorai (Avižienių sen.), Mėtų g.
Namo tipas
Karkasinis, Mūrinis
Įrengimas
Įrengtas
Plotas
65.45 m²
Aukštų skaičius
1
Šildymas
Elektra
Sklypo plotas
13.0 a
Ypatybės
Internetas, Elektra
Papildoma įranga
Skalbimo mašina, Su baldais, Šaldytuvas
Apsauga
Šarvuotos durys
Būsto paskolos skaičiuoklė
Nekilnojamojo turto kaina
Pradinis įnašas
%
15% 100%
Paskolos laikotarpis
metų
1 metai 30 metų
Banko marža
%
Euribor
%
Apytikslė įmoka
0 € / mėn.
Rodomas rezultatas yra informacinis ir remiasi apytikriais skaičiavimais. Įkeistas turtas turi būti apdraustas. Notarų mokesčiai, turto vertinimo ir draudimo išlaidos bankui nėra žinomi, todėl nėra įskaičiuojami į bendros paskolos kainos metinę normą palūkanų normą.
Pardavėjas: NT brokeris/statytojo atstovas
Vilniaus r. sav.
+370 67744431
Įdėtas: Redaguotas: Parodė / Perskaitė: 2295 / 89 Skelbimo ID: 67865959